Objektart
Adresse
Objektdaten
Informationen
Ausstattung
Details
Bitte beachten Sie: Die Immobilie verfügt über keinen Garten.
Diese attraktive 5-Zi. Wohnung, umfassend kernsaniert im Jahr 2015, bietet modernen Wohnkomfort auf zwei Etagen und verfügt über eine Einzelgarage. Durch den separaten Eingang sowie die alleinige Nutzung des Hauses entsteht ein Wohngefühl mit echtem Hauscharakter.
Im Zuge der Kernsanierung wurden die Heiztechnik (moderne Gaszentralheizung) sowie sämtliche Elektroleitungen und Wasserleitungen erneuert, wodurch das Haus auf einen zeitgemäßen Stand gebracht wurde. Die Immobilie ist nach Wohnungseigentumsgesetz (WEG) geteilt. Mit einem Miteigentumsanteil von 35/100 gehört dazu das alleinige Nutzungsrecht an allen Wohnräumen im Keller, Erd- und Obergeschoss sowie an der Garage.
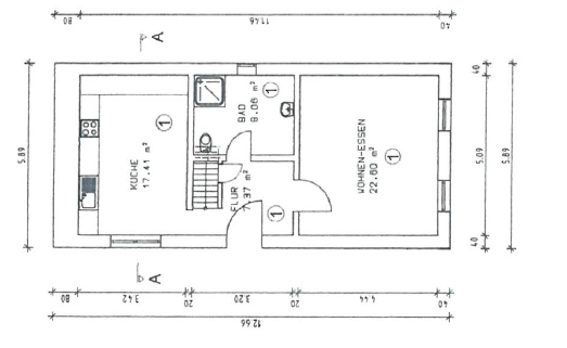
Im Erdgeschoss befindet sich eine großzügige Küche mit einer modernen Einbauküche, die bei Bedarf übernommen werden kann. Über die Diele gelangen Sie in das helle Wohnzimmer sowie in ein Tageslichtbad mit Dusche und WC. Das gesamte Erdgeschoss wurde im Jahr 2022 aufwändig renoviert: Die Böden wurden neu gefliest, die Wände mit hochwertigem Stucco Veneziano verputzt und die Decken mit Trockenbau samt Lichtspots versehen, die elegant entlang der Raumkanten verlaufen.
Über eine Treppe gelangt man in das Obergeschoss, welches durchdacht aufgeteilt ist. Hier finden sich ein gemütliches Schlafzimmer mit Zugang zu einem Balkon mit östlicher Ausrichtung, ein Kinderzimmer sowie zwei zusätzliche Räume, die flexibel als Ankleidezimmer, Büro oder Gästezimmer genutzt werden können. Ergänzt wird diese Etage durch ein weiteres Tageslichtbad mit Badewanne und WC. Der Boden im Obergeschoss ist mit hellem, freundlichem Laminat versehen, was den Räumen eine moderne und einladende Atmosphäre verleiht.
Die gesamte Wohnung ist mit hochwertigen Kunststoff-Isolierglasfenstern mit dreifacher Verglasung und elektrischen Rollläden, die bequem per Fernbedienung gesteuert werden können, ausgestattet. Im Jahr 2021 wurde zusätzlich die Westfassade der Immobilie gedämmt, wodurch die Energieeffizienz weiter gesteigert wurde.
Durch die Einzelgarage entfällt die lästige Parkplatzsuche, wobei sich in der Straße zusätzlich ausreichend freie Parkmöglichkeiten bieten.
Ein idealer Wohnraum für Familien oder Paare, die Wert auf Komfort, Qualität und durchdachte Details legen.
- 5-Zi. Wohnuhg mit Hauscharakter
- Kernsaniert im Jahr 2015 (Dach, Wasser- und Stromleitungen, Fenster, Heizung etc.)
- Einzelgarage mit elektrischem Tor
- Großzügiger Balkon mit östlicher Ausrichtung
- Zwei Tageslichtbäder (eines mit Dusche, eines mit Badewanne)
- Separater Kellerraum
- Dachspeicher als zusätzlicher Stauraum
- Hochwertige Kunststoff-Isolierfenster, dreifach verglast
- Gemeinschaftlich nutzbares Mülltonnenhäuschen
Dannstadt-Schauernheim liegt im Rhein-Pfalz-Kreis in Rheinland-Pfalz und gehört zur Metropolregion Rhein-Neckar. Die Gemeinde bietet eine attraktive Mischung aus ländlichem Charme und städtischer Nähe. Dank der schnellen Erreichbarkeit der Autobahnen A65 und A61 ist sie hervorragend an das Verkehrsnetz angebunden und ermöglicht eine zügige Verbindung nach Ludwigshafen, Mannheim oder Neustadt an der Weinstraße. Auch der öffentliche Nahverkehr bietet gute Anbindungen an die umliegenden Gemeinden und Städte.
Die Infrastruktur der Gemeinde umfasst diverse Einkaufsmöglichkeiten, Kindergärten, eine Grundschule sowie medizinische Versorgung durch Arztpraxen vor Ort. Weiterführende Schulen und größere Einkaufszentren sind in den nahegelegenen Städten schnell erreichbar.
Freizeit- und Erholungsmöglichkeiten finden sich in der Umgebung in Form von Rad- und Wanderwegen durch die malerische Landschaft der Vorderpfalz. Das lebendige Gemeindeleben wird durch zahlreiche Vereine und Veranstaltungen bereichert, während die Nähe zur Deutschen Weinstraße insbesondere Weinliebhaber begeistert.
Dannstadt-Schauernheim kombiniert somit die Vorteile einer ruhigen, ländlichen Umgebung mit den Annehmlichkeiten und der Dynamik einer zentral gelegenen Gemeinde - ein idealer Wohnort für Familien, Pendler und Naturliebhaber gleichermaßen.
Alle genannten Angaben zum Objekt beruhen auf den Angaben des Eigentümers. Irrtum vorbehalten.
Schon gewusst? Wir kümmern uns auch um die Finanzierung und Ihre Versicherungen.
Energieausweis (Bedarfsausweis)
202,30 kWh / (m²*a) Endenergiebedarf
202,30 kWh / (m²*a) Endenergiebedarf
202,30 kWh / (m²*a) Endenergiebedarf
Weitere Informationen
| Wesentlicher Energieträger | Gas |
| Energieausweis Jahrgang | ab dem 1.5.2014 |
| Energieausweis Werteklasse | G |
| Energieausweis Baujahr | 1930 |
| Energieausweis Gebäudeart | Wohngebäude |
| Heizung | Zentralheizung |
| Befeuerung | Gas |
Ich bin damit einverstanden, dass mir Karten von Google angezeigt werden. Es gelten die Datenschutzbedingungen von Google (https://policies.google.com/privacy).
Ich bin einverstanden
